LUWSSP – Conceptual Design of Emergency Shelters
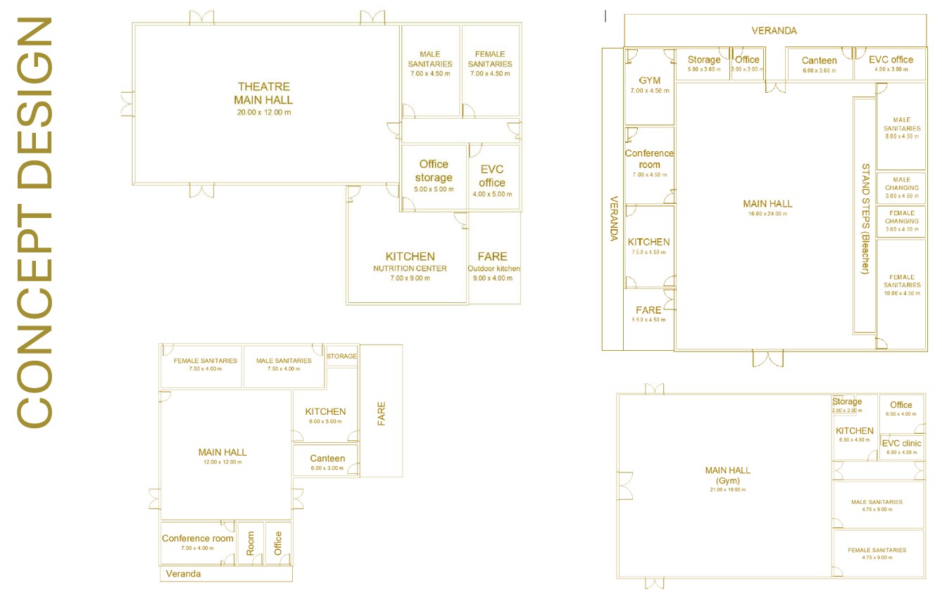
The project involved designing and building four multipurpose community emergency shelters across Luganville Municipality under the Luganville Urban Water Supply & Sanitation Project (LUWSSP). These shelters serve as evacuation centers for disasters such as cyclones, tsunamis, and floods, while also providing non-emergency community functions based on user-defined needs. The design focused on resilience, cost-effectiveness, and adaptability, targeting Class A+ standards, Category 5 cyclone resistance, and a 30-year structural lifespan.
Our Solutions
BildBeta developed the Conceptual Design Report, incorporating technical guidelines from the NDMO and cyclone rated structures best practices. Extensive community consultations informed the design, which emphasized accessibility, gender inclusivity, and local operational capacities. We proposed innovative design solutions, including structural robustness, energy backup systems, and functional layouts aligned with community needs. BildBeta also emphasized a collaborative design review process to ensure ownership by LMC and alignment with future operational requirements, fostering long-term sustainability and trust among stakeholders.

