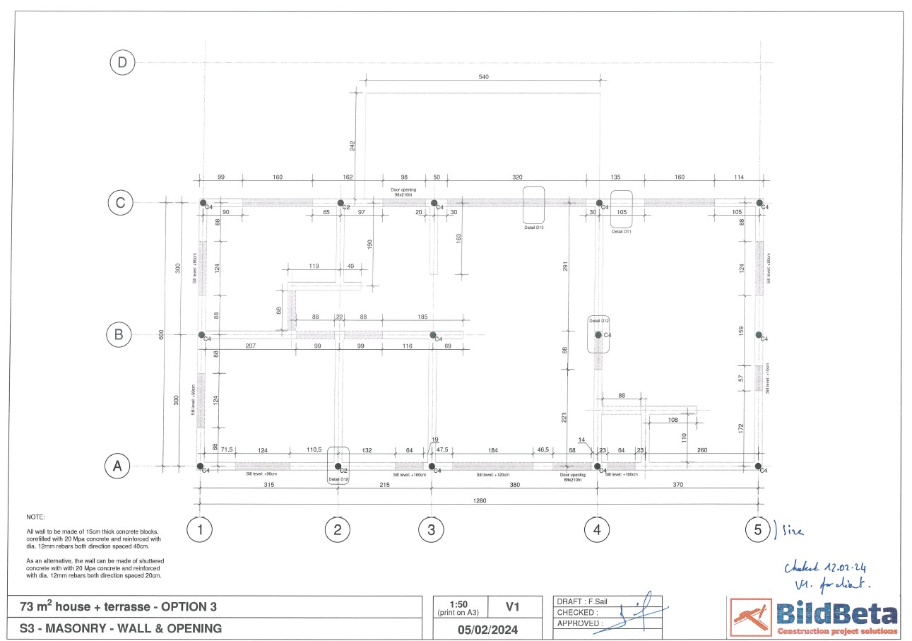
80m2 Cyclone-rated residential house
The project involved the concept and detailed design of an 80m² reinforced concrete house with 1 master bedroom with ensuite, 2 standard bedrooms, 1 bathroom, a living room, kitchen, laundry, and a large timber deck terrace. The design focused on cyclone-rated resilience, cost efficiency, and constructability. From the initial phase, BildBeta collaborated with a pre-identified builder to ensure the design aligned with local construction practices.
Our Solutions
BildBeta provided three concept design options for the client to choose from, followed by a comprehensive set of construction drawings, including water and electrical utilities. All construction details, a bill of quantities, and pricing were included, delivering a ready-to-build package that allowed the client to coordinate directly with the builder for the construction phase.

