Structural design for retrofit TradeTools
Date2024-2025 (Ongoing)
LocationPentecost, VANUATU
Value Est.To be confirmed
ClientExpertise France / AFD
Final ClientLocal Communities of Melsisi
CategoryPublic infrastructure
ServicesFeasibility studies
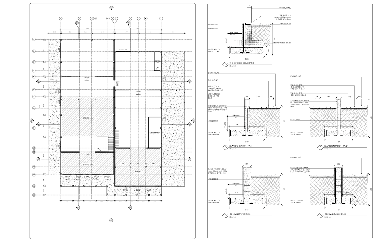
Following the devastation caused by Cyclone Harold in 2020, the Health Sector support program comprising reconstruction of multiple Health Centres and Dispensary aims to restore essential health services to the community. The project encompasses a climate-resilient design to withstand future natural disasters and a layout that ensures efficient service delivery.
Our Solutions
Following the devastation caused by Cyclone Harold in 2020, the Health Sector support program comprising reconstruction of multiple Health Centres and Dispensary aims to restore essential health services to the community. The project encompasses a climate-resilient design to withstand future natural disasters and a layout that ensures efficient service delivery.

